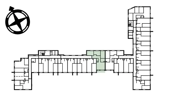
Apartament 02.K1.01 Floor 2 Area 78.71 m2 Rooms 4
State Available
Price per m²: 12 711,29 zł
Price: 1 000 506,00 zł
1 Corridor 12,10 m2
2 Room 11,82 m2
3 Room 11,03 m2
4 Room 12,39 m2
5 Bathroom 5,55 m2
6 Living room with kitchenette 24,10 m2
7 Toilet 1,72 m2
Total 78,71 m2
B1 Balcony ok. 7 m2
This website / website is for informational purposes only. The information contained on this website is not legally binding and does not constitute an offer, including within the meaning of Art. 66 § 1 of the Civil Code. The information contained on the website, including the information in the section "Current offer - apartments", does not constitute an assurance, in particular within the meaning of Article 556 of the Civil Code in Poland.

Sales office

Sales office

Langiewicza 37, 
Rzeszów

Local Apartment Sales Office

ul. Langiewicza 37/12
35-021 Rzeszów
17 710 00 17
Opening hours:
Monday - Friday.: 8:00 - 17:00
Saturday.: 9:00 - 13:00

Contact us